Úprava interiéru Kaplnky sv. Anny, Katedrála sv. Martina, Bratislava

| Autori | Ing. arch. Július Rybák |
| Spolupráca | Ing. arch. Ján Kostrian Ing. Pavol Mikolaj Mgr. art. Peter Hrachovský (Návrh na reštaurovanie) Mgr. arch. Tomáš Molnár (Návrh na reštaurovanie) Mgr. Elena Sabadošová (Návrh na reštaurovanie) |
| Investor | Rímskokatolícka cirkev |
| Návrh | 2012 – 2015 |
| Realizácia | 2016 – 2016 |
| Adresa
Text Foto |
Rudnayovo námestie 1, Bratislava, SlovenskoarchinfoJozef Jarošík |
Dielo predstavujeme prostredníctvom autorského textu:
Situácia a východiská
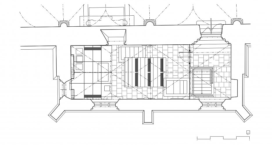
Gotický priestor Kaplnky svätej Anny bol vbudovaný medzi dva piliere severnej fasády lode Dómu svätého Martina v druhom desaťročí 16. storočia. Priestor je prístupný z katedrály pôvodným vchodom do hlavnej lode s obnoveným gotickým kamenným portálom prostredníctvom vloženého kamenného schodiska vyrovnávajúceho rozdiel úrovne hlavnej lode a kaplnky.
V Kaplnke svätej Anny sa nachádzajú dva vstupy do priestoru krýpt, kde jeden je trvalo využívaný ako vchod do podzemia katedrály v rámci jej prehliadok návštevníkmi a druhý je vchod do jezuitskej krypty, ktorý je otváraný len príležitostne. Pod priestorom kaplnky boli lokalizované archeologické nálezy románskeho karnera z prvej tretiny 13. storočia a základov kamenného piliera gotického kostola, ktoré sa zachovali v interiéri pred východnou fasádou prekryté dreveným pódiom.
Na čelnej stene je pod asymetricky (mimo pôvodného piliera) umiestneným gotickým oknom osadené na konzole Súsošie Svätej Anny (pôvodne centrálna plastika neogotického oltáru kaplnky). V priestore kaplnky je umiestnený v špalete zamurovaného okna steny hlavnej lode vo vertikálnej polohe náhrobok prepošta Juraja Peltela zo Schőnbergu, na stenách sa nachádza pamätná tabuľa kanonika Jozefa Ignáca Bajzu a epitafy kanonika Juraja Nagyho a opáta Michala Maurovitiusa.
Priestor kaplnky je prekrytý gotickou rebrovou dvojpoľovou klenbou. Mimo plochy dreveného pódia prekrývajúceho archeologický nález pri východnej fasáde má priestor kaplnky zachovanú kamennú opukovú podlahu doplnenú dlaždicami z červeného mramoru.



Zadanie
Zadanie investora vychádzalo z potreby vytvorenia adoračného priestoru v rámci Dómu svätého Martina, ktorý by umožňoval veriacim zotrvanie v tichej modlitbe a adorácii pred Bohostánkom, prípadne pred vyloženou Najsvätejšou Sviatosťou Oltárnou. To všetko i v časoch, kedy je priestor Dómu svätého Martina sprístupnený k prehliadkam pre návštevníkov a turistické skupiny.

Architektonické riešenie
Návrh a samotná realizácia vychádzala z existujúcej situácie jednotného umelecky i priestorovo vysoko kompaktného historického priestoru, ktorý je súdobým minimalistickým zásahom s vložením transparentnej, bezrámovej deliacej konštrukcie s jednoduchým oceľovým vstupným portálom rozdelený na dva funkčne čiastočne oddelené celky. Sú nimi nástupná zóna do adoračného priestoru (zároveň predpolie vstupu do krýpt) a samotný adoračný priestor. Forma tohto zásahu bola zvolená v snahe o nenarušenie možnosti vnímania priestoru kaplnky ako celku, pri čiastočnom odčlenení adoračného priestoru od časti vstupu do krýpt. Ten je počas bežného času sprístupnenia Katedrály sv. Martina zaťažený, spolu s hlavným priestorom lode, často až neprináležiacim ruchom.
V nástupnom priestore boli ako súčasť intervencie so sklenenou stenou s oceľovým portálom v jednotnom súdobom duchu realizované výmeny oceľových konštrukcií zábradlí vstupu do krýpt, ktorých riešenie umožňuje príležitostné prekrytie vstupu historickým poklopom. Bezrámová deliaca stena je kotvená do spodného profilu vloženého do podlahy v mieste styku dvoch kamenných lemov vstupov do krýpt. Pre vytvorenie transparentnej steny bolo využité sklo s obojstrannou antireflexnou úpravou.
V hlavnom priestore pri východnej fasáde bol drevený stupeň prekrytia archeologického nálezu nahradený novou oceľovou konštrukciou stupňa. Vložením priznaných prísne geometrických blokov z umelého pieskovca, došlo k rozdeleniu adoračného priestoru na dve časti.
Adoračná časť priestoru bola vybavená novým mobiliárom, ktorý zachováva jednoduchú geometrickú formu súdobej intervencie zámerne nekonkurujúcu historickému kontextu.
Na čelnej východnej stene bola zachovaná v polohe pod oknom reštaurovaná plastika sv. Anny na samostatnej oceľovej konzole, ktorá bola pôvodne centrálnou sochou neogotického oltára. Po vyčistení reštaurátorských nálezov novo inštalované tabernákulum bolo umiestnené s večným svetlom na centrálnej stene na drevenom asymetrickom parapete ležiacom na zákose a zadnej sekundárnej prímurovke pôvodnej menzy tohto oltára. Na čelnej stene ostala prezentovaná sondážne odkrytá gotická maľba. Je umiestnená vo fragmente so skoseným odtlačkom v rebre klenby.
V bloku lavíc umiestených na osi kaplnky, ako i po stranách kamenného stupňa pri východnej fasáde boli inštalované elektrické konvektory na čiastočné temperovanie priestoru v zimných mesiacoch, ktoré sú ovládané pohybovým čidlom a termostatom. Zamedzuje sa tým čím nežiaducemu zvyšovaniu teploty, ktoré je spojené so zvyšovaním vlhkosti v priestore. Vlhkosť vzniká najmä v suterénnych priestoroch katadrály.





Úprava interiéru Kaplnky sv. Anny, Katedrála sv. Martina, Bratislava.


Úprava interiéru Kaplnky sv. Anny, Katedrála sv. Martina, Bratislava.


